ハートリィハウジング 時代に沿った住宅建設 高知ホーム


高知県高知市,建築,注文住宅,リフォーム,建設,住宅 高知ホーム おいしい住宅








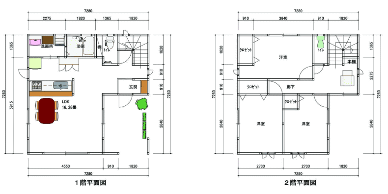
基本設定設備等ですと980万円で建築させていただきます。

(但し設備変更及び追加等ございましたら金額はその分必要になります。詳しくは詳細見積りの際にご相談させてい ただくように致します。)





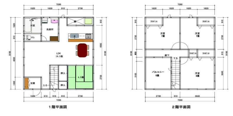
基本設定設備等ですと1180万円で建築させていただきます。

(但し設備変更及び追加等ございましたら金額はその分必要になります。詳しくは詳細見積りの際にご相談させてい ただくように致します。)



その他かかる費用
その他かかる費用は土地建物の登記・所有権移転費用・印紙代等、照明、カーテン、エアコン、外構工事、で 160〜200 万円程かかります。
借入額等で変化がありますので、打合せを進めながらご相 談させていただきます。

おいしさの秘密
弊社で建築させていただいている建物は通常建築されている建物に比べるとは るかにグレードが高い素材を使用しています。
ローコストと言える秘訣はたくさんありますが、まず会社の維持経費から差が出ます。
建築と不動産元々別々に事務所を構えていた会社が1つになる事で2重の部分を省きスマ ートになった事。
業務の丸投げや投げと一般的に言われている事をせず自社内で図面を書 き、大工さん及びたくさんの職人さんとも手間はかかりますが直接話し合い作業をしていただ いている事。
メーカーさんで製作されてくるサッシやその他様々な設備の仕入れ値も建築と不動産双方からの発注 で仕入れる金額を少しでも落とせる事。
おいしい住宅ではサッシの数を極力余計な箇所を省き、建物の形もきれいにまとめる事で 従来かかる余計な作業を出来るだけ無くしその分金額に還元できるようにしました。
あと廊下をできるだけ無くしお部屋にする事で施工面積を省ければその分も金額の差とし てでてきます。

当社の建物構造の特徴
(1) 建具の建て付けが悪くなったりするのは木材の欠点である収縮から起こります。
  当社では人工乾燥材を使用しています。

(2) 一、二階を剛床にしています。
  剛床とは根太を使わずに直接構造材の上に床を打ち 付ける工法です。
  28mm の構造用合板を貼り、その上に12mm のフロアー合板を施 工します。
  床の厚さが40mm となり建物の水平の捩れにも強くなります。

(3) 軸組み工法は将来の家族構成の変更に対応しての増改築が安易にできます。


   
   在来軸組工法 地盤保証(十年間)建物瑕疵保障(十年間)






ミニミニFC高知店賃貸 ミニミニFC高知店不動産売買  ミニミニFC高知店社宅代行  ミニミニFC高知店マンション管理 ミニミニFC高知不動産・駐車場管理  ミニミニ本店