

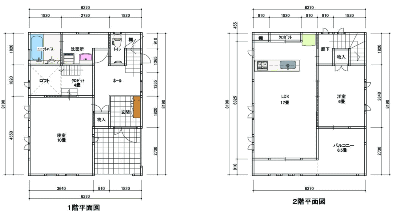
注文建築住宅の着工途中に柱や梁の大きさで検査機関の方を『こんな構造は建売とかでは
見た事が無い』と唸らせた丈夫で贅沢に構造材を使用した弊社自慢の住宅です。現代風のお子様1人等のご家族向けにと企画した上記3LDK 住宅は『リゾート地のホテル に遊びに来たようだ』『家族が大人数でないのでこの広さで十分。 金額も大変手頃で満足』 『思う通りの家が出来た』と施工させていただいたお客様から高い評価をいただきました。 ![]() この家のパネル工法は当社独自のものです。公的な保障はありませんが、強度は同等です。 地盤保証(十年間)建物瑕疵保障(十年間) |






|
ご予算に応じた建物をプランニングさせていただきお客様に判断していただく注文住宅建
築になります。 お客様のこだわりが実現する夢を現実にする商品です。 各施主様のこだわ りとかけれる予算とを打合せを行いながら完成したお家は長く住まわれるに相応しい愛着 の沸くお家になるのではないでしょうか。 |
